Котел 0.3 МВт твердотопливный в Джизаке

Твердотопливный котел 0.3 МВт
Котел 0.3 МВт твердотопливный
Котел 0.3 МВт твердотопливный с колосниками чертеж
Котел 0.3 МВт твердотопливный чертеж
Твердотопливный котел 0.3 МВт водогрейный
Водогрейный твердотопливный котел 0.3 МВт
Котел 0.3 МВт твердотопливный промышленный
Промышленный котел 0.3 МВт твердотопливный
Твердотопливный котел 0.3 МВт - люк для очистки конвективной части
Люк для очистки конвективной части твердотопливного котла 0.3 МВт
Твердотопливный котел 0.3 МВт - изготовление
Изготовление твердотопливного котла 0.3 МВт
Твердотопливные котлы 0.3 МВт - производство
Производство твердотопливных котлов 0.3 МВт
Котел 0.3 МВт - обшивка потолочной части
Обшивка потолочной части котла 0.3 МВт
Чертеж котла 0.3 МВт твердотопливного с колосниками
Чертеж твердотопливного котла 0.3 МВт
Чертеж изготовления фундамента котла 0.3 МВт твердотопливного с колосниками
Чертеж фундамента котла 0.3 МВт на твердом топливе
Твердотопливный котел 0.3 МВт
Котел 0.3 МВт твердотопливный с колосниками чертеж
Твердотопливный котел 0.3 МВт водогрейный
Котел 0.3 МВт твердотопливный промышленный
Твердотопливный котел 0.3 МВт - люк для очистки конвективной части
Твердотопливный котел 0.3 МВт - изготовление
Твердотопливные котлы 0.3 МВт - производство
Котел 0.3 МВт - обшивка потолочной части
Чертеж котла 0.3 МВт твердотопливного с колосниками
Чертеж изготовления фундамента котла 0.3 МВт твердотопливного с колосниками
Цена
2 906 520 ₸
От 2 906 520 ₸ с доставкой до г.
  • Компактная вертикальная модель для маленьких котельных
  • Работает на естественной тяге, дымосос и вентилятор не требуются
  • Широкий диапазон рабочего давления от 0.1 до 0.3 МПа
  • Изготовление из трубы сталь 10-20 высокого качества
  • Возможна установка дымовой трубы на каркас котла

Технические характеристики котла 0.3 МВт твердотопливного

МаркаКотел 0.3 МВт твердотопливный
ВидВодогрейный
Тип отопительного котлаТвердотопливный
БрендHEATEXPERT
ТипКотел КВр
Вид топкиРучная, Колосники
Максимальная тепловая мощность0.3 МВт
Максимальная тепловая мощность300 кВт
Максимальная тепловая мощность0.26 Гкал
Диапазон регулирования мощности50-100 %
ТопливоТвердое, Уголь
Низшая теплота сгорания проектного топлива5230 кКал/кг
Влажность топлива30 %
Фракционный состав топлива УГОЛЬСодержание мелочи (0-6 мм) не более 50%; максимальный размер куска не более 100 мм
КПД котла на УГЛЕ, не менее80 %
Расход УГЛЯ среднечасовой за отопительный сезон35 кг/ч
Расход УГЛЯ при максимальной нагрузке котла62 кг/ч
Расход условного топлива46 кг/ч
Минимальная температура воды на входе в котел55 °С
Максимальная температура воды на выходе из котла115 °С
Давление воды, не более0.15-0.3 (1.5-3) МПа (кгс/см²)
Номинальный расход теплоносителя11 м³/ч
Расход теплоносителя через котел min-max8-14 м³/ч
Гидравлическое сопротивление при номинальном расходене более 0.07 (0.7) МПа (кгс/см²)
Аэродинамическое сопротивление35 (3.5) Па (мм. вод. ст.)
Разряжение в топочной камере20-40 (2-4) Па (мм. вод. ст.)
Объем уходящих газов1300 м³/ч
Температура уходящих газов250 °С
ТягаЕстественная
Водяной объем котла125 л
Объем топочной камеры0.6 м³
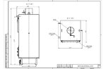
Размер топочной камеры, длина*ширина*высота690х690х1265 мм
Присоединительные размеры по водяному тракту50 Ду
Присоединительные размеры газохода уходящих газов, ширина*высота / сечениеДу 300 / 0.07 мм/м²
Габаритные размеры блока, длина*ширина*высота960х960х2285 мм
Габаритные размеры котла, длина*ширина*высота960х960х2480 мм
Масса1200 кг
Конструкция котлаВодотрубная
Количество контуровОдноконтурный
РазмещениеНапольный
Тип камеры сгоранияОткрытый
УправлениеЭлектронное
Принцип работы твердотопливного котлаКлассический
ЭнергонезависимыйНет
Тип питанияТрехфазное
Встроенный циркуляционный насосНет
Встроенный расширительный бакНет
Отапливаемая площадьот 2300 до 3300 м²
Отапливаемый объемот 6900 до 10000 м³
ЭнергоэффективностьВысокая

Котел 0.3 МВт твердотопливный в Джизаке

Промышленный твердотопливный котел мощностью 0.3 МВт – современный, компактный, вертикального расположения, с ручной загрузкой топлива и естественной тягой, предназначен для отопления и горячего водоснабжения бытовых зданий и промышленных котельных.

Водогрейный котел 0.3 МВт на твердом топливе имеет следующие технические характеристики:

  • мощность – 0.3 МВт, 300 кВт, 0,26 Гкал;
  • топливо - твердое, каменный и бурый уголь;
  • температура - до 115 °С;
  • давление - 0.1 – 0.3 МПа.

Котел 0.3 МВт на твердом топливе устройство

Стальной отопительный котел 0,3 МВт твердотопливный состоит из топочной и конвективной частей, расположенных вертикально.

Топочная часть. Камера горения изготовлена из стальных водозаполненных панелей для исключения перегрева конструкции. Топка выполнена в газоплотном исполнении. Газоплотность исключает присосы холодного воздуха в топочную часть и выход дымовых газов в котельный зал.

Чугунные колосники укладываются в топку и образуют колосниковую решетку, необходимую для поддержания слоя топлива. Колосники имеют щелевидные отверстия, которые снизу расширяются. Отверстия необходимы для провала золы и шлака в зольник и подвода воздуха на горение. Расход воздуха регулируется шибером.

Конвективная часть. Конвективная поверхность нагрева выполнена из параллельно установленных в шахматном порядке труб. Шахматное расположение способствует более полному омыванию труб горячими газами.

Развитая конвективная часть снижает температуру уходящих газов на выходе из теплоагрегата до 200-180 °С. Горячие газы, проходя плотную конвективную ступень, максимально отдают тепло теплоносителю, позволяя экономить на топливе. Очистка поверхностей нагрева проводится через люки в обшивке.

Множественные перегородки увеличивают скорость потока воды в трубной системе водонагревательного котла. Это исключает застойные зоны и перегрев поверхностей нагрева. Для выпуска воздуха при заполнении котла водой в верхней части агрегата установлен штуцер с вентилем.

Для продувки и дренажа в нижней части котла установлен дренажный штуцер с вентилем. Стационарный нагревательный котел 0 3 МВт изготавливается со съемной, облегченной теплоизоляцией из плит ПТЭ. Обшивка производится из стальных листов.

Принцип работы твердотопливных котлов 0,3 МВт

Уголь в водогрейный колосниковый котел 0.3 на твердом топливе укладывается через чугунную дверку, расположенную на фронте теплогенератора. Распределение свежего угля по колосниковой решетке должно быть равномерным высотой не более 200 мм.

Образующиеся в топочной камере газы выходят через расположенную над топкой конвективную ступень теплообмена, и двигаясь вверх выводятся в систему дымоудаления.

Зола и шлак из зольника через дверку выгребаются и удаляются в отвал.

Дымовая труба обеспечивает естественную тягу. При недостаточной высоте трубы, либо при плюсовых температурах окружающей среды дополнительно устанавливается дымосос. По Вашему желанию дымовая труба может быть установлена на котел при изготовлении.

Регулирование мощности котла

Регулировка производительности и температуры производственного теплового котла 0.3 МВт на твердом топливе производится изменением количества забрасываемого топлива.

Комплект поставки

Цена на напольные котлы 0 3 МВт твердотопливные включает базовую комплектацию. В состав базовой комплектации входит: котельный блок, топка, колосники, затворы, предохранительные клапаны, вентили, манометры, термометры, трехходовые краны.

Дополнительная комплектация

  • автоматика – обеспечивает управление и безопасность котла;
  • циркуляционный насос - обеспечивает циркуляцию воды в котлоагрегате;
  • подпиточный насос – позволяет пополнять объем теплоносителя в контуре;
  • дымовая труба – удаляет дымовые газы от котла за пределы помещения и рассеивает их в атмосфере. Подбирается по техзаданию.

Купить твердотопливный котел 0.3 МВт

Для того чтобы купить водогрейный котел 0,3 МВт твердотопливный российского производства в Джизаке, вы можете сделать заявку по телефону +7-7172-69-59-73, либо оформить заявку онлайн. Менеджеры дадут консультацию по подбору вспомогательного оборудования для выбранных вами моделей и рассчитают стоимость доставки. Транспортирование котлоагрегата и вспомогательного оборудования до объекта осуществляется автомобильным транспортом.

Комплект поставки котла 0.3 МВт твердотопливного

Вентилятор
Вентилятор 2 с дв. 0,37/1500
1 штука
Шаровый кран
Кран шаровый
2 штуки
Клапан обратный
Клапан обратный
1 штука
Манометр МП 160
Манометр МП 160
2 штуки
Кран трехходовой ДУ 15
Кран Ду 15
2 штуки
Термометр ТТЖО
Термометр ТТЖО
2 штуки
Оправа термометра ОПТ
Оправа ОПТ
2 штуки
Вентиль Ду 15
Вентиль Ду 15
1 штука
Вентиль Ду 20
Вентиль Ду 20
1 штука

Вспомогательное оборудование для работы котла 0.3 МВт твердотопливного

Насос К консольный
К 50-32-125
Цена 283 656 тг.
Насос К консольный
К 50-32-125а
Цена 279 204 тг.
Насос TD
Насос TD32-33G2 (3 кВт)
Цена 788 640 тг.
Насос CHL
Насос CHL2-40 (0.55 кВт)
Цена 368 880 тг.
Дымовые трубы
Цена по запросу
Клапан термостатический смесительный для твердотопливных котлов
Клапан термостатический смесительный
Цена 82 680 тг.

Аналоги котла 0.3 МВт твердотопливного

Котел 0.3 с топкой ОУР
Котел 0.3 с ОУР
Вид топкиРучная, ОУР
Максимальная тепловая мощность, МВт0.3
ТопливоТвердое, Уголь
Отапливаемая площадь, м²от 2300 до 3300
Цена 2 772 960 тг.
Котел 0.3 МВт дрова уголь
Котел 0.3 МВт уголь дрова
Вид топкиРучная, Колосники, ОУР
Максимальная тепловая мощность, МВт0.3
ТопливоТвердое, Уголь, Дрова
Отапливаемая площадь, м²от 2300 до 3300
Цена 2 957 400 тг.
Котел КВм 0.3 МВт с топкой РПК
Котел КВм 0.3 МВт с РПК
Вид топкиМеханическая, РПК
Максимальная тепловая мощность, МВт0.3
ТопливоТвердое, Уголь
Отапливаемая площадь, м²от 2300 до 3300
Цена по запросу
Угольный котел автоматический 0.3 МВт
Автоматический угольный котел 0.3 МВт
Вид топкиРетортная, Автоматическая
Максимальная тепловая мощность, МВт0.3
ТопливоТвердое, Уголь
Отапливаемая площадь, м²от 2300 до 3300
Цена 5 450 520 тг.
Твердотопливный котел 0.2 МВт
Котел 0.2 МВт твердотопливный
Вид топкиРучная, Колосники
Максимальная тепловая мощность, МВт0.2
ТопливоТвердое, Уголь
Отапливаемая площадь, м²от 1200 до 2200
Цена 2 245 080 тг.
Твердотопливный котел 0.4 МВт
Котел 0.4 МВт твердотопливный
Вид топкиРучная, Колосники
Максимальная тепловая мощность, МВт0.4
ТопливоТвердое, Уголь
Отапливаемая площадь, м²от 3000 до 4300
Цена 3 313 560 тг.

Сертификат и качество котла 0.3 МВт твердотопливного

Сертификат на водогрейные котлы на твердом и жидком топливе
Сертификат на водогрейные котлы на твердом топливе

Собственное производство

Котельный завод производит
  • Паровые котлы от 300 кг до 2.5 тонны пара в час
  • Промышленные водогрейные котлы от 150 КВт до 4 МВт на всех видах топлива
  • Механические топки ТШПМ, шурующая планка и ТЛПХ, ленточное полотно прямого хода
  • Циклоны для очистки воздуха и дымовых газов для производств и промышленных отраслей
  • Транспортеры и системы топливоподачи и шлакоудаления
Подробнее о производстве
Собственное производство
Смотреть видео
с производства